_37B4402.jpg
 
 
 
 

Kommune

Location: Sheffield, UK


Services: Architecture/ Interior Design

Status: Completed

Key Elements:

Client: Northpoint/ Kollider

Date: 2018

Sector: Leisure


 
 
 
 
Castlehouse sheffield exterior view 1.jpg
 

About the project…

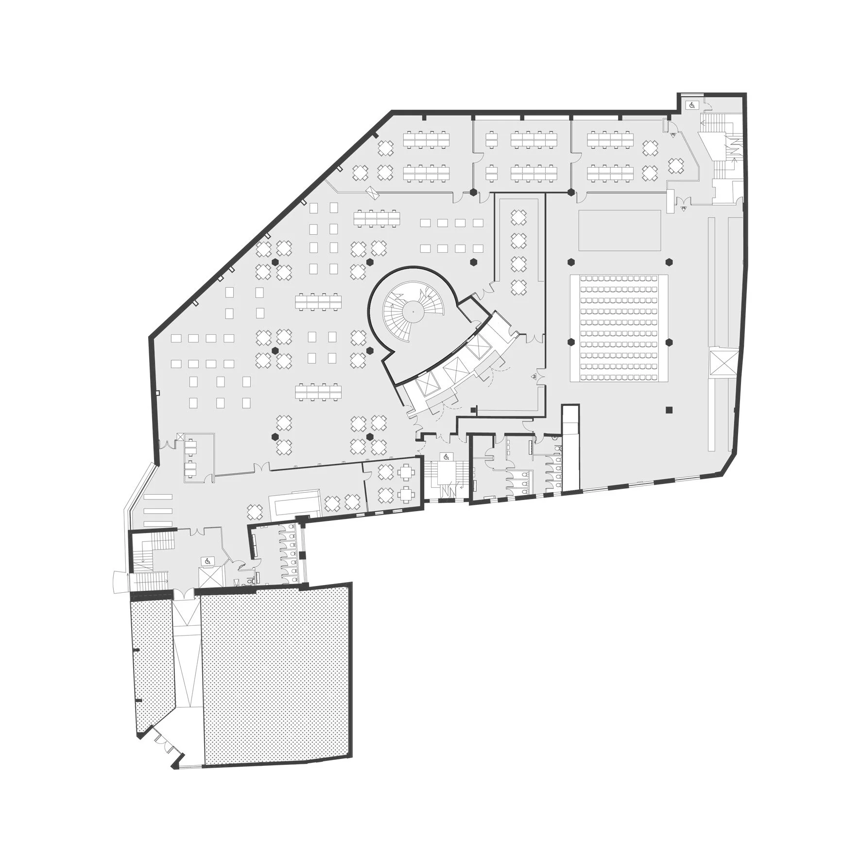
The national video game museum were based in Nottingham and were attracted to the new contemporary conversation of castle house in Sheffield. In 2018 they moved their facility to take up approximately 10,000 sq ft on the first floor of the building. The brief we had was to provide an innovative interior to compliment their selection of old and new video games. 

A new public entrance ramp was formed, reception area, cafe and soft play zone.

The installation has proved to be a great success and an asset to the building and Sheffield.

 
 
 
 
 
 
 
 
 
Castlehouse Section

Castlehouse Section